2021 - 2026
Zuschlag Planerwahlverfahren
Umbau und Erweiterung Demenzzentrum Sonnweid Wetzikon
Sonnweid AG
B. Burren, I. Manaila, D. Schulz
Mitarbeit Wettbewerb: C. Berberat,
T. Anthamatten
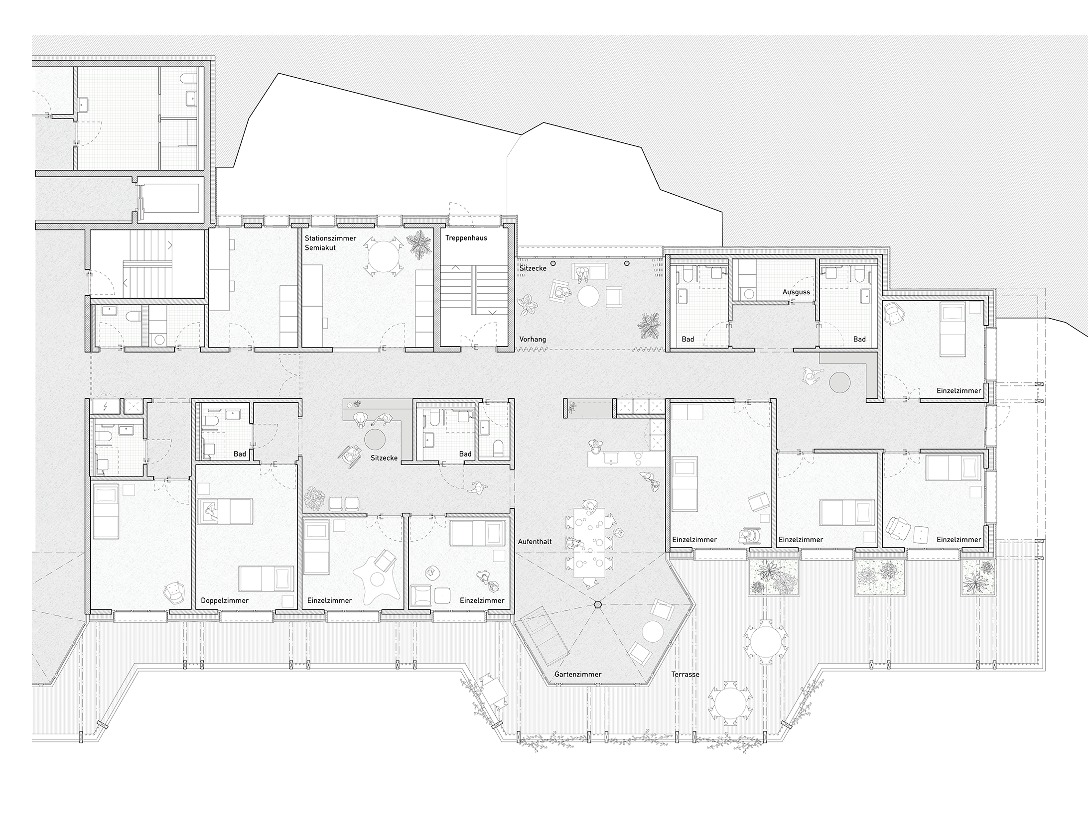
Das Haus C im Demenzhaus Sonnweid soll erneuert und erweitert werden. Mit einer vorgestellten dreigeschossigen Gartenlaube, die alt und neu verbindet, sowie beschattete und begrünte Aussenräume anbietet, zwei kleinen seitlichen Anbauten und einer Aufstockung, kombiniert mit minimalen Eingriffen im Bestand können die gestellten Anforderungen effizient erfüllt werden.
Das Haus C wird mit einer zusätzlichen Zimmerachse an der Ost- und Westseite sowie einer Aufstockung um ein Geschoss in der Volumetrie erweitert. Die beiden Anbauten ermöglichen es, die geforderten Pflegeabteilungen mit der gewünschten Anzahl an Einzel- und Doppelzimmern unterzubringen, während die Räume für die Mitarbeitenden in der Aufstockung Platz finden und durch eine grosszügige Dachterrasse ergänzt werden. Die Gemeinschaftsräume werden nach Süden erweitert durch einen Raum, der wie ein Sonnenschirm von einer zentralen Stütze getragen wird. Herzstück des Entwurfs bildet die dreigeschossige Gartenlaube, welche neue und bestehende Gebäudeteile zu einem Ganzen zusammenbindet. Die Laube bietet einerseits eine effektive Beschattung für die nach Süden orientierten Zimmer, andererseits schafft sie zusätzliche Bewegungsfläche für die Bewohnenden. Im Bereich der erweiterten Gemeinschaftsräume wölbt sich die Gartenlaube nach aussen und schafft grosszügige Aufenthaltsbereiche. Die geplanten Kletterpflanzen, die vom Boden aus der Laube entlang nach oben ranken, sorgen für zusätzliche Beschattung und eine angenehme Atmosphäre. Die Laubenschicht liegt nur in der Mittelzone direkt an der Fassade, in den übrigen Bereichen wird sie von der Fassade abgesetzt, um die Privatsphäre und Sicherheit der Bewohnenden zu wahren. Die Fuge zwischen Laubengang und Fassade wird als Folge von Pflanztrögen und kleinen Lichthöfen ausformuliert. Um das Gebäude energetisch zu verbessern, wird die Fassade allseitig gedämmt und mit einer Holzverschalung verkleidet. Das gewählte Farbkonzept aus roten und grünlichen Farbtönen tragt dazu bei, das neu gestaltete Haus C in das Gebäudeensemble der Sonnweid zu integrieren.
2021 - 2026
Zuschlag Planerwahlverfahren
Umbau und Erweiterung Demenzzentrum Sonnweid Wetzikon
Sonnweid AG
B. Burren, I. Manaila, D. Schulz
Mitarbeit Wettbewerb: C. Berberat,
T. Anthamatten
Das Haus C im Demenzhaus Sonnweid soll erneuert und erweitert werden. Mit einer vorgestellten dreigeschossigen Gartenlaube, die alt und neu verbindet, sowie beschattete und begrünte Aussenräume anbietet, zwei kleinen seitlichen Anbauten und einer Aufstockung, kombiniert mit minimalen Eingriffen im Bestand können die gestellten Anforderungen effizient erfüllt werden.
Das Haus C wird mit einer zusätzlichen Zimmerachse an der Ost- und Westseite sowie einer Aufstockung um ein Geschoss in der Volumetrie erweitert. Die beiden Anbauten ermöglichen es, die geforderten Pflegeabteilungen mit der gewünschten Anzahl an Einzel- und Doppelzimmern unterzubringen, während die Räume für die Mitarbeitenden in der Aufstockung Platz finden und durch eine grosszügige Dachterrasse ergänzt werden. Die Gemeinschaftsräume werden nach Süden erweitert durch einen Raum, der wie ein Sonnenschirm von einer zentralen Stütze getragen wird. Herzstück des Entwurfs bildet die dreigeschossige Gartenlaube, welche neue und bestehende Gebäudeteile zu einem Ganzen zusammenbindet. Die Laube bietet einerseits eine effektive Beschattung für die nach Süden orientierten Zimmer, andererseits schafft sie zusätzliche Bewegungsfläche für die Bewohnenden. Im Bereich der erweiterten Gemeinschaftsräume wölbt sich die Gartenlaube nach aussen und schafft grosszügige Aufenthaltsbereiche. Die geplanten Kletterpflanzen, die vom Boden aus der Laube entlang nach oben ranken, sorgen für zusätzliche Beschattung und eine angenehme Atmosphäre. Die Laubenschicht liegt nur in der Mittelzone direkt an der Fassade, in den übrigen Bereichen wird sie von der Fassade abgesetzt, um die Privatsphäre und Sicherheit der Bewohnenden zu wahren. Die Fuge zwischen Laubengang und Fassade wird als Folge von Pflanztrögen und kleinen Lichthöfen ausformuliert. Um das Gebäude energetisch zu verbessern, wird die Fassade allseitig gedämmt und mit einer Holzverschalung verkleidet. Das gewählte Farbkonzept aus roten und grünlichen Farbtönen tragt dazu bei, das neu gestaltete Haus C in das Gebäudeensemble der Sonnweid zu integrieren.











